开云-Kaiyun(体育中国)官方网站

越秀星樾售楼处(越秀星樾)网站-楼盘百科-2025北京房天下·kaiyun体育网页版
CN EN
越秀星樾售楼处(越秀星樾)网站-楼盘百科-2025北京房天下
作者:小编 日期:2025-10-23 07:42:06 点击数: 

  ✅越秀星樾售楼处电话:✔️当云朵气球悠然升向城市天际,当AI报纸定格潮流新时代面孔,当人们在Labubu 咖啡香中交谈未来……✅越秀星樾售楼处电话:✔️现代简约风,融合了简洁的设计理念与精致的细节处理,整体呈现出时尚、舒适且富有品质感的特点。

  越秀星樾在朱辛庄双轨旁,有着高效立体通勤。昌平线两站西二旗、四站上地,与海淀高效通勤。8号线贯穿北京的南北方向,一直到亦庄的瀛海。这也是越秀星樾为什么会深受北部买房人欢迎的原因之一。

越秀星樾售楼处(越秀星樾)网站-楼盘百科-2025北京房天下(图1)

  乘坐地铁一站,可达北京北部最大超级商业综合体——超级合生汇,总建筑面积约46万平方米,500+品牌入驻,拥有20%区域首店、全国规模最大潜水馆、国际赛事级泵道公园及室内攀岩馆等。

越秀星樾售楼处(越秀星樾)网站-楼盘百科-2025北京房天下(图2)

  社区一路之隔就是万达广场,一站式休闲购物体验,约5万平米,下楼即享繁华配套。

越秀星樾售楼处(越秀星樾)网站-楼盘百科-2025北京房天下(图3)

  五大三甲医院,积水潭医院、北大国际医院、北大第六医院昌平院区等五大三甲级医院环伺,从日常到重点医疗设施一应俱全。

越秀星樾售楼处(越秀星樾)网站-楼盘百科-2025北京房天下(图4)

  项目配建约3200㎡幼儿园,周边教育资源覆盖幼、小、初、高全龄阶段。北京101昌平实验学校:距项目直线未来科学城学校:与北京101中学一脉相承,距项目直线月开学。

越秀星樾售楼处(越秀星樾)网站-楼盘百科-2025北京房天下(图5)

  越秀星樾在海淀外溢第一站朱辛庄,地处未来科学城西区,是国家级自贸试验区主阵地,周边小米产业园、国际信息产业园、好未来总部等高新产业汇聚,华电、中铝等众多世界500强环伺,是北京五环外首置首改的当红热土。

越秀星樾售楼处(越秀星樾)网站-楼盘百科-2025北京房天下(图6)

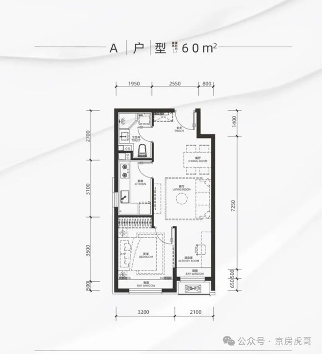
  60平米的正规一居室,具有做两居的条件。主卧面宽3.2米,主卧的面积不小。活动室的面宽是2.1米,后期可以根据需求和客厅隔开,做成小的卧室。户型虽小,但五脏俱全,又紧邻地铁,是预算不高的买房人福音。

越秀星樾售楼处(越秀星樾)网站-楼盘百科-2025北京房天下(图7)

  79平米全南两居室,客厅、主卧、次卧前部朝南。客厅面宽3.35米,主卧面宽3.1米,三个功能空间都有飘窗的赠送。作为刚需两居,是入门级户型。

越秀星樾售楼处(越秀星樾)网站-楼盘百科-2025北京房天下(图8)

  83平米是南北通透的两居室,南向客厅和主卧,两个功能空间有飘窗的赠送。U型厨房,还有单独的餐厅位置,且餐厅也有窗,未来可以边吃饭边赏园林景观。

越秀星樾售楼处(越秀星樾)网站-楼盘百科-2025北京房天下(图9)

  101平米三居设计,南向三面宽。南向主卧Kaiyun平台 开云体育官方入口+客厅+次卧,都是飘窗的赠送,主卧是套间设计,主卧可以实现南北通透。

  北向的厨房+独立餐厅+次卧,这个户型也做了独立餐厅。这个户型是由实体样板间的,项目把次卧和客厅打通,做出一个大宽厅。

越秀星樾售楼处(越秀星樾)网站-楼盘百科-2025北京房天下(图10)

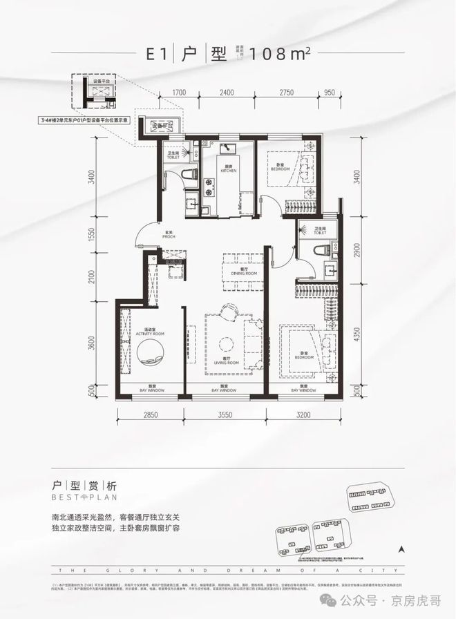
  108平米南向三面宽,客厅面宽3.35米,主卧是套间的设计,面宽在3.2米,次卧的面宽2.85米,三个功能空间都有飘窗的赠送。

  北向的卧室面宽2.75米,厨房餐厅客厅一体化设计,南北通透。这个户型是现在市场上最常见的三居设计。

越秀星樾售楼处(越秀星樾)网站-楼盘百科-2025北京房天下(图11)

  110平米的三居在108平米的基础上升级了,南向还是三面宽,客厅的面宽3.55米,主卧的面宽3.2米,次卧的面宽2.85米,相比较108平米户型,110平米客厅的面宽更大了。

  北向卧室的面宽在3.2米,厨房是宽U设计,餐客厨LDK一体化。户型方正且格局全明。

越秀星樾售楼处(越秀星樾)网站-楼盘百科-2025北京房天下(图12)

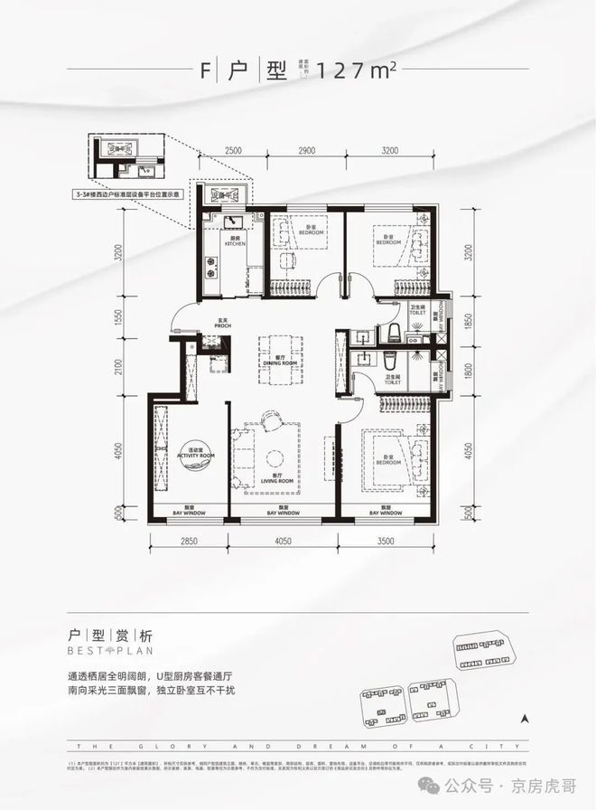
  127平米是项目唯一的四居户型,客厅面宽4.05米,主卧的面宽3.5米,次卧的面宽2.85米,南向三个功能空间是有飘窗赠送的。

  仔细看会发现,主卫和客卫也是有飘窗赠送的。所以这个户型得房率也是项目最高的。

越秀星樾售楼处(越秀星樾)网站-楼盘百科-2025北京房天下(图13)

  项目是分为三宗地块,当时期房一期开盘,一天就售罄,轰动昌平买房人,取得了非常好的成绩。这也是越秀在昌南的首秀作品。

  项目面积段比较多,相应的选择也会多,从60-127平米,一居到四居都可以选择,不管是刚需还是刚改,都可以覆盖到。

越秀星樾售楼处(越秀星樾)网站-楼盘百科-2025北京房天下(图14)

  外立面采用曲线美学,运用黄金比例,超国标品质匠材,让高颜建筑肌理,历久弥新;色调以高级灰与米白为主色调,铜色灵感曲线点缀,潮领如鸟斯飞的轻盈之美。

越秀星樾售楼处(越秀星樾)网站-楼盘百科-2025北京房天下(图15)

  园林以“一座洗涤烦忧的归家港湾,一场星樾下的悠然之旅”为故事线展开。奢华美学门庭、水韵归家仪仗、中轴樱花大道、星空儿童乐园、中央会客厅等丰富景开云网址 kaiyun官方入口观节点,盛载全家人的志趣与热爱。

越秀星樾售楼处(越秀星樾)网站-楼盘百科-2025北京房天下(图16)

  星樾三批次房源现在开始做意向登记了,预计月底或八月初开售。同时110㎡样板间也开放了。本次三批次推售148套,户型涉及79㎡两居室、83㎡南北通透两居室、101㎡三居室、110㎡三居室。说完面积段还是回归买房人最关心的价格,价格还未定,但预计开售价格会低于二批次开盘价。

越秀星樾售楼处(越秀星樾)网站-楼盘百科-2025北京房天下(图17)

  ✅北京昌平越秀星樾售楼处电话:✔️【越秀星樾】全新作品双展厅璀璨绽放!看房请提前预约✔️✅越秀星樾售楼处电话:✔️当云朵气球悠然升向城市天际,当AI报纸定格潮流新时代面孔,当人们在Labubu 咖啡香中交谈未来……✅越秀星樾售楼处电话:✔️现代简约风,融合了简洁的设计理念与精致的细节处理,整体呈现出时尚、舒适且富有品质感的特点。

  特别声明:以上内容(如有图片或视频亦包括在内)为自媒体平台“网易号”用户上传并发布,本平台仅提供信息存储服务。

  魔幻现实!当年买下亚洲楼王的大佬,竟是柬埔寨“电诈狂魔”!在港百亿资产曝光...

  北方大面积降温上热搜!华润置地出手,在三亚CBD重塑热带度假人居格局!

  全新坦克400双线亿辆车被召回,超半数源于监管调查,车企自查缺陷就这么难?

  WIKO Hi MateBook 14 笔记本锐龙版「晨曦金」10 月 24 日发布

  2025款苹果MacBook Pro运行《赛博朋克2077》帧率对比M4提升190%

  大疆DJI Osmo Mobile 8发布:898元起 三轴增稳防抖技术